od 1439 € mesačne
309 000,00 €
Novo stavba rodinného domu /848 m2/, Dubové
Lokalita: Dubové
4 iz.
848 m²
364.39 €/m²
Opis
Na predaj Vám ponúkame rodinný dom nachádzajúci sa v novej, rozrastajúcej sa časti obce Dubové. Jedná sa o stavbu typu bungalov, postavenú na pozemku o rozlohe 848 m2. Dom sa predáva v štandarde.
Jedná sa o murovanú stavbu z tvárnic YTONG Univerzál o hrúbke 250 mm obvodové múry a 125 mm vnútorné priečky, zateplenie systémom EPS. Strešná krytina škridla značky Bramac. Okná plastové s tepelno-izolačným trojsklom. Vykurovanie: podlahové teplovodné zo zdroja: tepelné čerpadlo. Zastrešená terasa s prípravou na podlahové kúrenie.
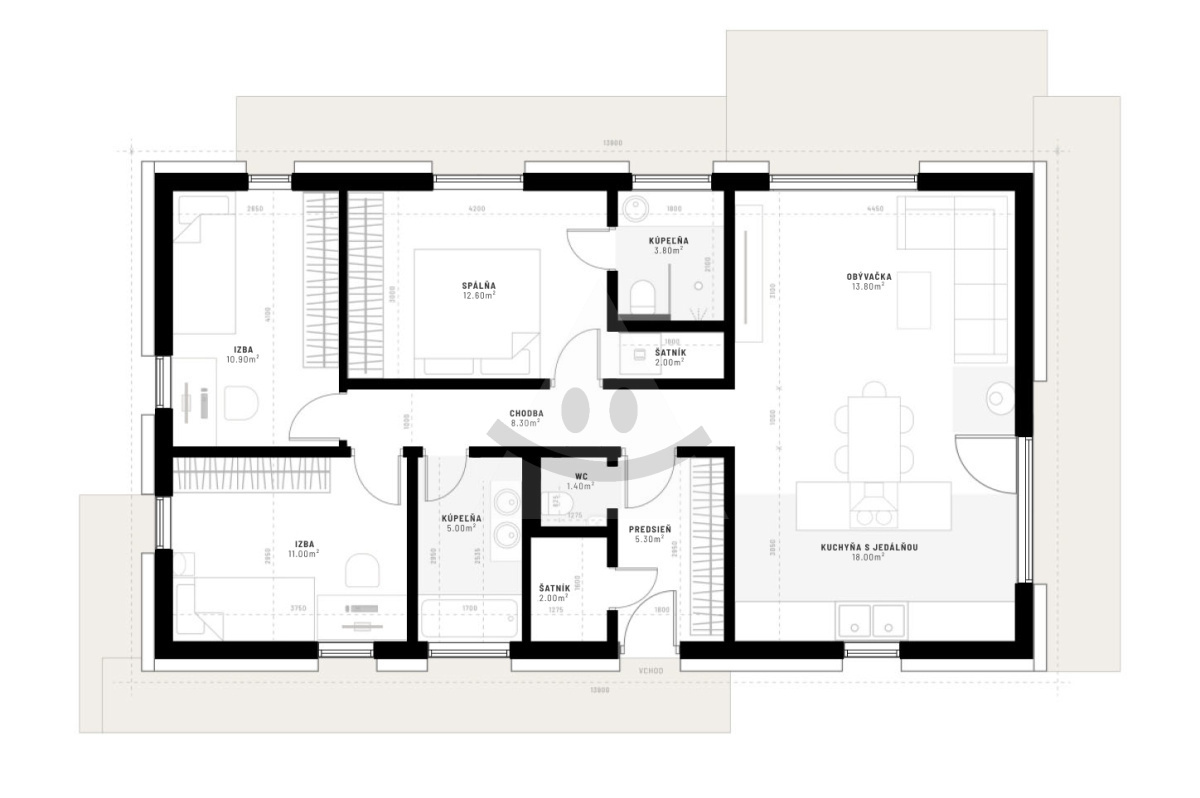
Dispozične bude dom pozostávať so zádveria, chodby, šatníka, dvoch kúpeľní, WC, kuchyne + jedálne, obývacej izby a troch samostatných
izieb.
Plocha miestností :
Zádverie: 5,31 m2
Šatník: 2,04 m2
WC: 1,37 m2
Kúpeľňa: 4,70 m2
Chodba: 8,26 m2
Izba 1: 11,06 m2
Izba 2: 10,87 m2
Spálňa: 12,60 m2
Kúpeľňa s WC: 3,78 m2
Kuchyňa + jedáleň: 18,02 m2
Obývacia izba: 13,80 m2
Podľa projektovej dokumentácie je zastavaná plocha 155,98 m2, úžitková 91,81 m2 a obytná 66,35 m2.
Dom má elektrickú a vodovodnú prípojku. Na odvod odpadu bude slúžiť žumpa.
Dom sa predáva ako holodom.
Po vzájomnej dohode je dom možné dokončiť na kľúč, podľa želania zahŕňajúce kuchynskú linku, interiérové osvetlenie a materiál podľa preferencií kupujúceho.
Viac informácií Vám poskytneme na tel. čísle 0907803243.
Poloha
Charakteristiky
Benefity
- Novostavba
- Veľký pozemok
- Najlepšia cena za m2
- Najlacnejšia v okolí
Dátum poslednej aktualizácie: 06.06.2025
Kontakt
Podobné nehnuteľnosti
3 iz.
1 128 m²
Na predaj dva rodinné domy, 11. marca, Zvolen - Môťová
4 iz.
653 m²
Exkluzívna Investičná Príležitosť vo Zvolene – Tri Domy na Obrovskom Pozemku (1783 m2) v Môťovej!
4 iz.
267 m²
Moderný rodinný dom vo Zvolenskej Slatine /131 m2/
4 iz.
462 m²
Moderný rodinný dom vo Zvolenskej Slatine /160 m2/















